田布施町 売家
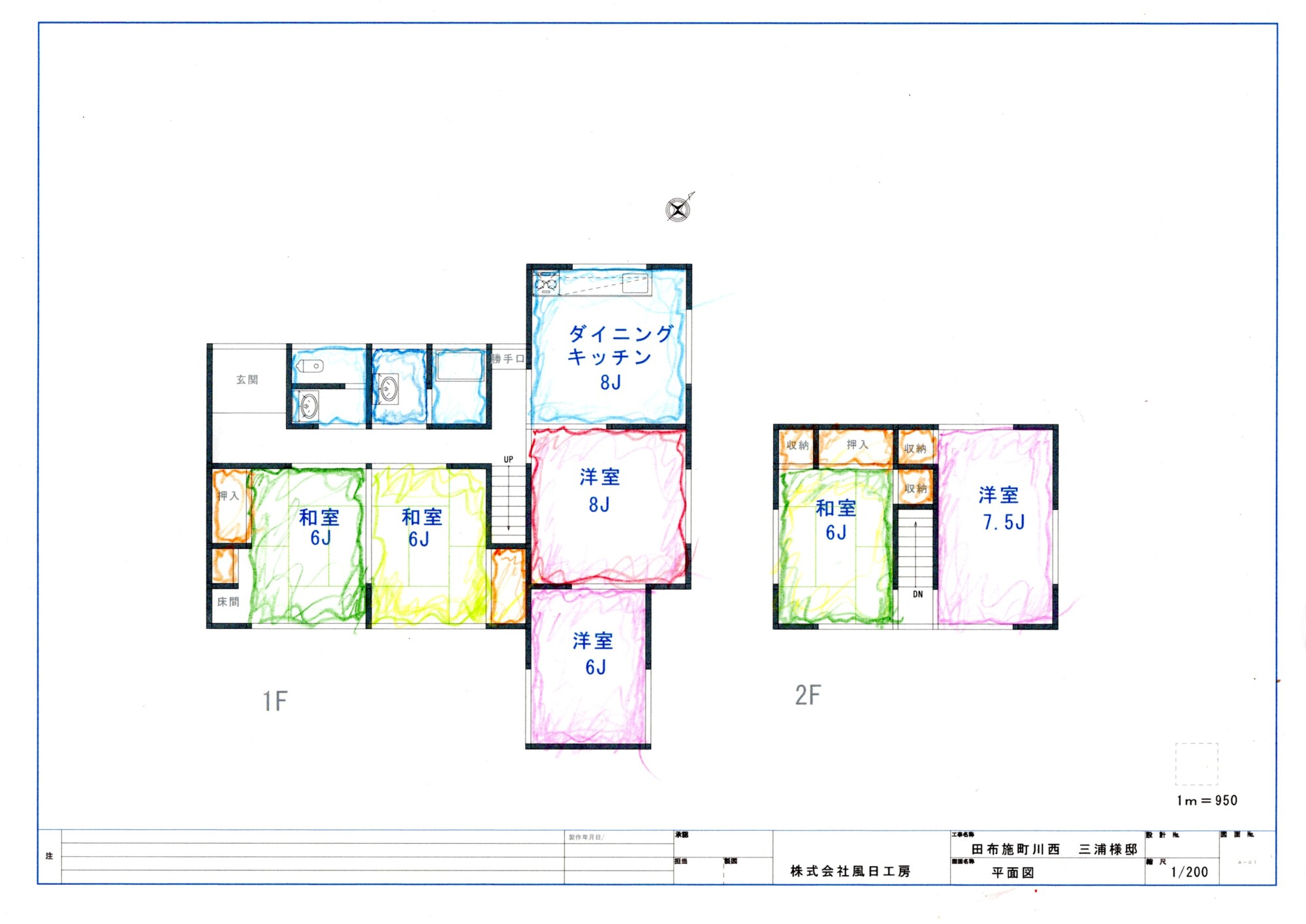
田布施町川西 100万円
築年数は、古いですが、リフォームされていて
まだまだ現役です。
キッチンは、新しく
家全体も築年数の割には、綺麗です。
(この辺は個人の主観による)
買いやすい値段設定なので、
それなりに欠点もありますが、
賃貸物件にも、自分で購入されてリフォームされても
購入しやすい値段なのでどうですか。
軽自動車もこの値段では買えません。
2025年12月14日 |
土地・物件紹介

田布施町川西 100万円
築年数は、古いですが、リフォームされていて
まだまだ現役です。
キッチンは、新しく
家全体も築年数の割には、綺麗です。
(この辺は個人の主観による)
買いやすい値段設定なので、
それなりに欠点もありますが、
賃貸物件にも、自分で購入されてリフォームされても
購入しやすい値段なのでどうですか。
軽自動車もこの値段では買えません。
![]()